Marylebone, London , 2 bed , Apartment for Rent , Instruction to Let
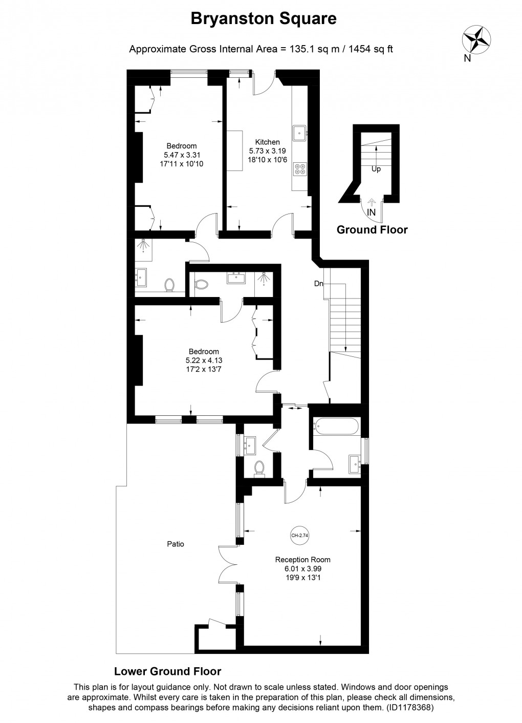
Bryanston Square, Marylebone, London, W1H
£5,850 PCM (£1,350 PW) Fees ApplyDescription
- Living / Dining Room
- Eat In Kitchen
- Principal bedroom with En Suite Bathroom
- 2nd Double Bedroom
- Further Bathroom
- Guest cloakroom
- Private Decked Patio
- Use of Bryanston Square Communal Gardens ( fee payable)
- Furniture Hire Packages Available
Available from: Apr 9, 2026
Furnishing: Unfurnished
A beautifully refurbished two-bedroom apartment situated on the lower ground floor of this elegant period building on Bryanston Square. The property has been finished to a high standard throughout, featuring wooden floors and a fresh, neutral décor. The bright reception room opens directly onto a charming private decked patio through French doors, creating a lovely indoor–outdoor living space. The principal bedroom, which overlooks the patio, benefits from an en-suite bathroom, while a second well-proportioned double bedroom is served by a stylish additional shower room.
The generously sized kitchen offers ample space for dining, making it ideal for both everyday living and entertaining. A particularly attractive and spacious hallway also provides flexibility to accommodate a home office area if desired.
The apartment can be accessed either via its own private entrance or through the main entrance of the building. Ideally located on Bryanston Square, the property is just a short stroll from the vibrant village atmosphere and boutique shops, cafés and restaurants of Marylebone High Street. Excellent transport links are available nearby at Baker Street station, while the green open spaces of Hyde Park and Regent’s Park are both within easy reach.
EPC – C, Council Tax (Westminster) Band C, Security Deposit – Six weeks rent, Gas, Electricity, Water and Sewerage – all mains connections. Gas Central Heating. Broadband: good service available. Mobile – good service available, Parking – Residents permit required from Westminster Council (fees apply).
Living/Dining Room: Kitchen: Principle Bedroom With En Suite Bathroom: Further Double Bedroom, 2 Additional Bathrooms, Private Decked Patio: Use Of Private Communal Gardens (fees apply), Furniture Hire packages available