Paddington and Bayswater, London , 4 bed , Flat for Rent , Instruction to Let
Merchant Square East, Paddington and Bayswater, London, W2
£11,267 PCM (£2,600 PW) Fees ApplyDescription
- Reception Room
- New Modern Open Plan Kitchen
- 4 Bedrooms
- 3 Bathrooms
- Balcony With River Views
- Private Underground Parking
Available from: Feb 27, 2026
Furnishing: Furnished
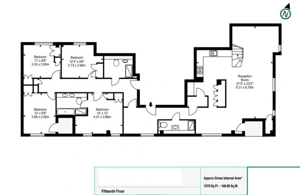
This four bedroom penthouse is situated on the fifteenth floor of this prestigious building which features a concierge service, lift service, and secure underground parking. The stunning apartment is set on 1579 sq. ft., and comprises spacious living and entertaining space with a beautiful reception room, a large terrace offering breath taking views over London, a superb modern fitted open plan kitchen, four bedrooms, three bathrooms and storage space. The apartment offers easy access to superb transport links such as Paddington Train Station (Elizabeth Line, Bakerloo, Hammersmith & City, Circle, District lines and Heathrow Express) Edgware Road (Circle, District and Bakerloo lines). EPC – C, Council Tax (Westminster) Band G, Security Deposit - 6 weeks rent. Electricity, Water and Sewerage – all mains connections. Electric Central Heating. Broadband: good service available. Mobile – good service available.
Reception room, new and modern fitted open-plan kitchen, balcony view over the waterside, 4 bedrooms, 3 bathrooms, concierge service, lift, secure underground parking.
Floorplan