Marylebone, London , 2 bed , Mews House for Rent , Instruction to Let
Romney Mews, Marylebone, London, W1U
£5,417 PCM (£1,250 PW) Fees ApplyDescription
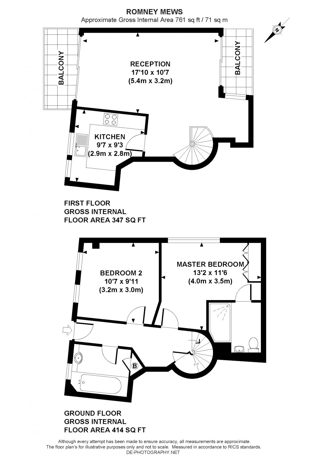
- Living / Dining Room
- Kitchen
- 2 Bedrooms
- 2 Bathrooms (1 En Suite)
- 2 Balconies off 1st floor Living Room
Available from: Mar 11, 2026
Furnishing: Furnished or Unfurnished
A unique and charming mews house set within a private gated mews just off Chiltern Street, featuring two private balconies with both north- and south-facing aspects. The property has been refurbished in a contemporary style and is newly decorated throughout in a neutral palette. Ideally located close to the shops, restaurants and transport links of Baker Street, and just a short stroll from Regent’s Park and Marylebone High Street. EPC – D, Council Tax (Westminster) – Band F, Security Deposit – 6 weeks rent. Gas, Electricity, Water and Sewerage – all mains connections. Gas Central Heating, Broadband: FTTC, Mobile – good coverage, Parking – Residents permit required from Westminster Council.
Living/dining room, kitchen, 2 bedrooms, 2 bathrooms (one en suite), 2 balconies off the 1st floor reception space
Floorplan